





Mettiamo la nostra esperienza al suo servizio: ci contatti per iniziare.
LOCATION
MARIGLIANO (NA)

Scrivi un titolo accattivante.
LAVORI
IN CORSO

Corso Plebisciti, 1 - 20129 (MI) - Italy
+39 081 0102 270
info@joinarchitecture.it
© 2025 JOIN ARCHITECTURE. All rights reserved.
ANNO
LOCATION
MAS
INDUSTRY
MAS (NA)
2025

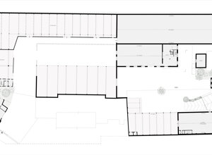
Intervento di riqualificazione urbana finalizzato a rigenerare un’area industriale dismessa attraverso il recupero delle strutture esistenti e l’inserimento di nuovi volumi architettonici.
Il progetto prevede la realizzazione di un nuovo blocco uffici con facciate ventilate e si articola in aree distinte dedicate allo stoccaggio, alla lavorazione e ai depositi, riorganizzando così l’intero complesso in modo funzionale e contemporaneo.


